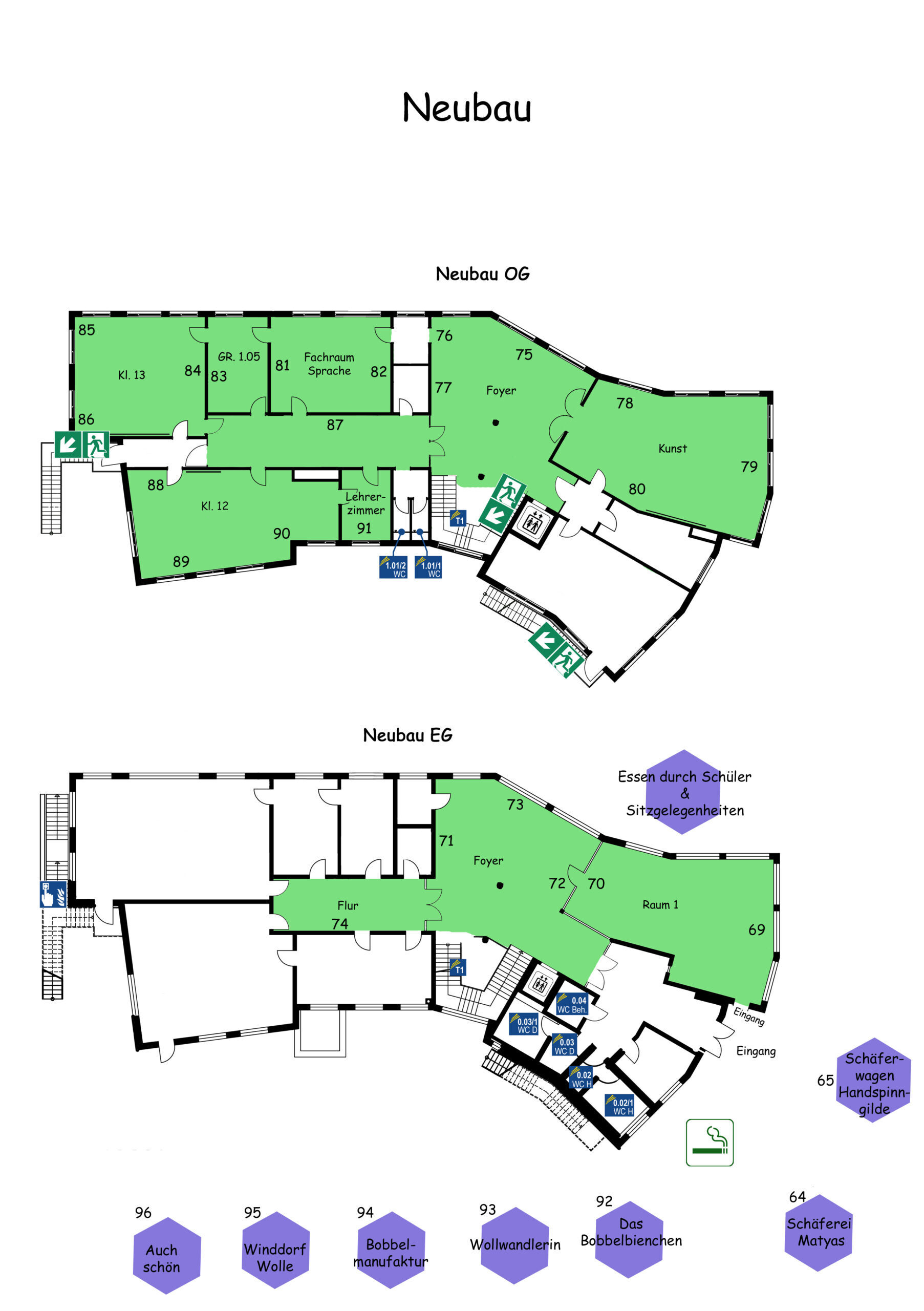
Viele Räume sind ebenerdig oder im Neubau mit einem Fahrstuhl zu erreichen.

Es gibt 2 Behindertentoiletten, eine befindet sich im Hauptgebäude bei den großen Sälen und eine gleich beim Eingang im Neubau.

Der Behindertenparkplatz ist direkt am Haupteingang neben weiteren normale Parkplätzen gekennzeichnet.

Die Pläne hängen an mehreren Stellen auf dem Gelände aus.

Änderungen sind noch möglich.

Viele Sitz- und Strickmöglichkeiten sowohl im Aussen- wie auch im Innenbereich !!!


Die Raumpläne werden im Sommer veröffentlicht !